Montacoches Hidráulico
| Sección vertical del hueco | Dos cilindros acción lateral 2:1 |
![]() |
![]() |
Opcional:
Dos cilindros acción lateral 1:1 (adecuado para 2 paradas)
Varios cilindros acción lateral 1:1 (adecuado para carga pesada)
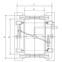
Tamaño ubicación de estructura de doble cilindros 2:1
Parámetros de Montacoches Hidráulico
| Capacidad de Carga (kg) | Tamaño de Automóvil (mm) | Dimensiones del Hueco (mm) | PL(mm) | Puerta | ||
| A | B | C | D | E (A) | Apertura central dos paneles deslizantes | |
| 2500 | 2300 | 5500 | 3500 | 6150 | 2200×2100 | |
| 3200 | 2500 | 6000 | 3900 | 6650 | 2300×2300 | |
| 5000 | 2700 | 7000 | 4200 | 7650 | 2500×2300 | |
Montacoches Personalizado
Lantytk® CORP es un fabricante profesional de montacoches hidráulicos, que integra en una sola estructura la investigación, desarrollo, venta, instalación, reparación y mantenimiento de estos equipos. La empresa cuenta con la certificación del sistema de calidad ISO9001: 2000. Además de montacoches hidráulicos, también proveemos ascensores residenciales, ascensores de pasajeros, ascensores panorámicos, ascensores montacamas, ascensores de carga, escaleras mecánicas y andenes móviles. Si necesita alguno de estos equipos, por favor contáctenos.

- Ascensores de Carga AutoportantesLantytk® CORP es un fabricante profesional de ascensores de carga autoportantes (sin cuarto de máquinas), que integra en una sola estructura la investigación, desarrollo, venta, instalación, reparación y mantenimiento de estos equipos. La empresa cuenta con la certificación del sistema de calidad ISO9001: 2000. Además de ascensores de carga autoportantes (sin cuarto de máquinas), también proveemos ascensores residenciales, ascensores de pasajeros, ascensores panorámicos...
English
Español
Português
